Публичные слушания
Публичные слушания
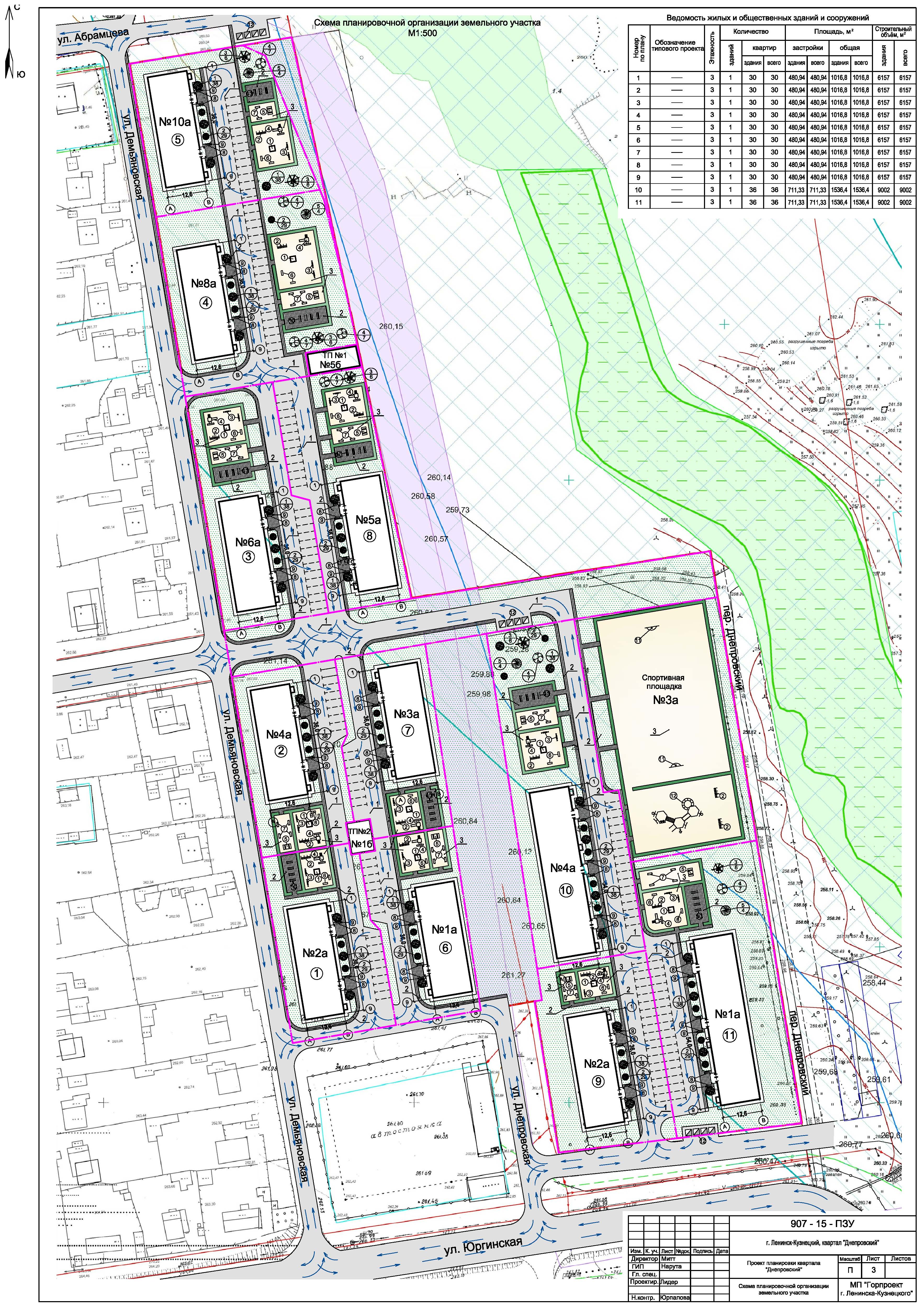
Администрация Ленинск-Кузнецкого городского округа сообщает о начале публичных слушаний по проекту планировки квартала «Днепровский» и проекту межевания земельных участков для строительства многоквартирных жилых домов в районе ул.Днепровская.
Ознакомиться с эскизными предложениями и оставить свои замечания и предложения можно с 22.04.2015 г. по 14.05.2015 г. с 10.00 до 16.00 ч. ежедневно (кроме субботы и воскресенья) в здании администрации города (просп. Кирова,56, 4 этаж, каб. 416), а также на официальном сайте администрации Ленинск-Кузнецкого городского округа в сети Интернет: www.leninsk-kuz.ru.
Внимание! 14.05.2015 г. в 15.00 ч. состоится общее собрание жителей в рамках публичных слушаний по данному вопросу по адресу: г. Ленинск-Кузнецкий, просп.Кирова,56, 4 этаж (актовый зал). Результаты собрания войдут в протокол публичных слушаний и будут переданы в комиссию по проведению публичных слушаний при администрации городского округа.
С кратким отчетом о проведении публичных слушаний можно будет ознакомиться с 25.05.2015 г. в здании администрации городского округа по адресу: г.Ленинск-Кузнецкий, просп.Кирова,56, каб. 407.
Дополнительную информацию можно получить по тел. 3-14-22, 3-23-19.
Начальник УАиГ Н.Б.Германова
Документы для загрузки: Постановление / Графический материал / Графический материал / ПЗ проект планировки / ПЗ проект межевания / проект межевания / Заключение / Постановление об утверждении проектов межевания



